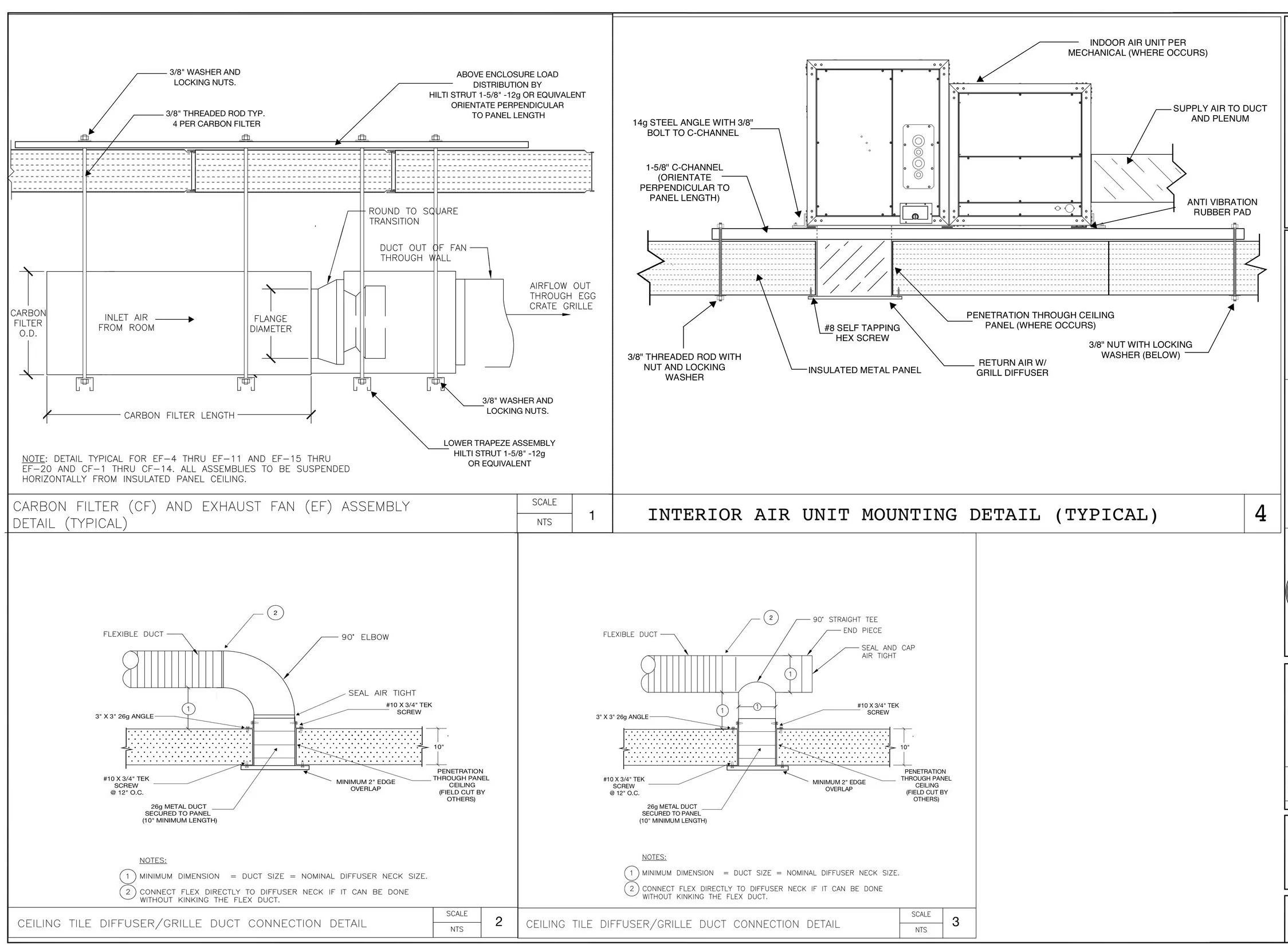
MODULAR PANELS: A REVOLUTION IN CULTIVATION CONSTRUCTION
As the founders and the growers behind the ground breaking company Canna Panels, we know a thing or two about panels. Through years of experimentation and dozens of successful projects, we perfected the design and construction techniques that have been adopted by the biggest names in cannabis.
See why Plan C is the INDUSTRY CHOICE FOR STATE OF THE ART cannabis enclosureS
COORDINATED STRUCTURAL ENGINEERING
We have a trained team of engineers who specialize in cannabis, working with your projects specialty consultants to properly plan your panel enclosures.
Avoid last minute delays and costly change orders by letting us engineer your system to our typical grow room standards.
OPEN SOURCE MANUFACTURING
Instead of being locked into one specific panel manufacturer, we use our engineering specifications to open the material supply up to our network of vendors, getting you competitive bids from which to choose.
Our Open source model allows you to get the most competitive pricing on your panel system, making sure you get everything you need, and nothing you don’t.
DEDICATED INSTALLATION TEAM
Our install team is the best in the business, having built grow rooms exclusively since 2013. We never use temporary labor on our jobs, instead providing skilled installers who have been with us from the start
We come from the gardens of Los Angeles to your site fully prepared to improve your project, one panel at a time.
